САТУ
Үздік сату




Цена старая: 6 990 000 тг с НДС.
Цена акционная новая 5 990 000 тг. с НДС.
Экономия: 1 000 000 тг.
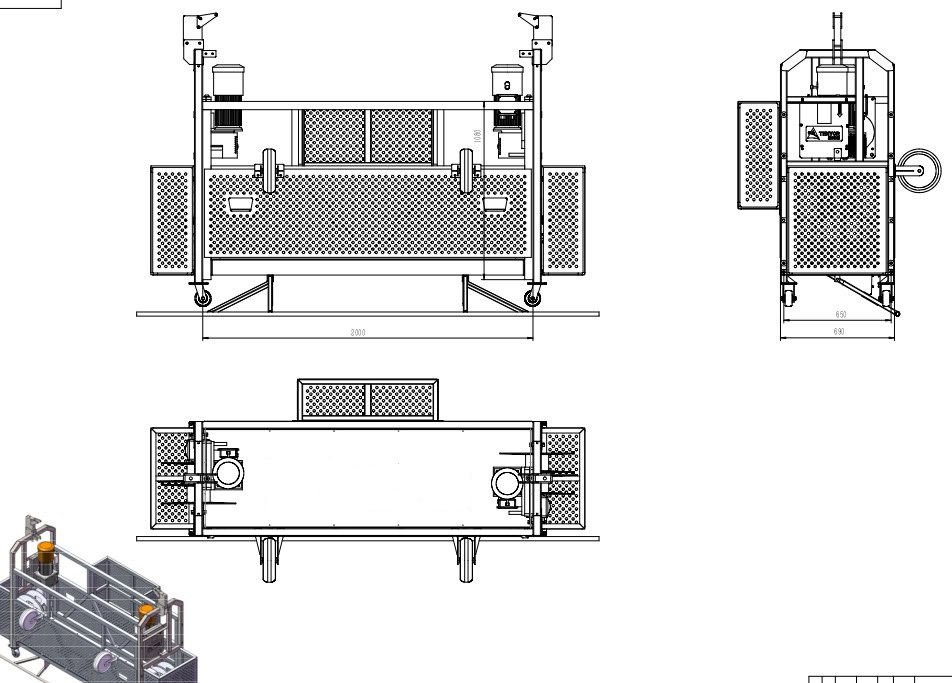
| Люлька түрі | 2 орынды, жуу (арқанды орау лебедкаларымен) |
| Люлька материалы | Ыстық мырышталған болат |
| Көтергіштігі | 250 кг-ға дейін |
| Көтеру жылдамдығы | 9,5 м/с-қа дейін |
| Жел жүктемесі бойынша шектеу | 9 м/с-қа дейін |
| Консольдар түрі | Жылжымалы, жүріс дөңгелектерінде (қолмен жылжытылады) |
| Электрмен жабдықтау | 380В, 50Гц |
| Қозғалтқыш қуаты | 2 х 1,5 кВт + 2 х 2 кВт |
| Қорғаныс класы | IP54-тен төмен емес |
| Қолдану саласы | Тік геометриялы фасадтарды тазалау, жөндеу және техникалық қызмет көрсету |
Жоғары жылжымалылық: Дөңгелектердегі жылжымалы консольдар жүйені шатырда қолмен оңай жылжытуға және фасадтың қызмет көрсету аймағын тез өзгертуге мүмкіндік береді.
Сенімділік және ұзақ мерзімділік: Люлька ыстық мырышталған болаттан жасалған, бұл коррозияның пайда болуын болдырмайды және жабдықтың қызмет ету мерзімін ұзартады.
Жұмыс қауіпсіздігі: Жел жүктемесі 9 м/с-қа дейін шектелуі персоналдың қауіпсіздігін қамтамасыз етеді. 250 кг-ға дейінгі көтергіштік 2 адамнан тұратын бригаданы да, қажетті жабдықты да көтеруге мүмкіндік береді.
Сыртқы әсерлерден қорғаныс: Электр қозғалтқыштары IP54 қорғаныс класына ие, бұл шаңнан және су тамшыларынан қорғауды қамтамасыз етеді.
Тиімділік: Жоғары көтеру жылдамдығы (9,5 м/с) бос жүріс уақытын қысқартады және еңбек өнімділігін арттырады.
Жуу бесігі және жылжымалы консольдері бар DAVIT жүйесіне (BMU) тапсырыс беру
тегін сенім телефонына қоңырау шалу керек 8 800 005 00 34
немесе электрондық пошта жазыңыз info@viramax.kz
Біз сізге бірнеше минут ішінде жауап береміз!
Тік геометриялы ғимараттардың фасадтарында биіктікте жұмыс істеуге арналған DAVIT (БМУ — қауіпсіз моечная установка) жүйесінің кәсіби моделі. Бұл жабдық тазалау компаниялары, ғимараттарды пайдалану қызметтері және өнеркәсіптік альпинизммен айналысатын мердігер ұйымдар үшін өте қолайлы.
Жабдық жоғары көтергіштікті және қауіпсіздікті біріктіреді. Ыстық мырышталған болаттан жасалған жуу люлькасы коррозияға және сыртқы ортаның әсеріне төзімді. Дөңгелектердегі жылжымалы консольдар жүйені шатыр бойынша немесе құрылыс алаңында тез жылжытуға мүмкіндік береді, бұл қосымша техниканы тартпай-ақ жұмыс аймағын жедел өзгертуге жағдай жасайды.
Қуатты электр қозғалтқыштары мен жоғары көтеру жылдамдығы (9,5 м/с-қа дейін) және IP54 қорғаныс класының арқасында қондырғы күрделі ауа-райы жағдайында да жұмыс істей алады. Жүйе толық пайдалануға дайын күйде жеткізіледі.